Paint Sheen For Kitchen Cabinets / Paint For Kitchen Cabinets Menards #homedecor #livingroom ... - Since advance is a waterborne alkyd paint, it is easy to use and cleans up with soap and water, unlike. . After removing the hardware, i recommend that the cabinets be thoroughly cleaned with a good cleaner or degreaser to remove all. If your cabinets have plastic laminate surfaces, first check with a knowledgeable paint dealer, and test a sample of the paint you wish to use in an inconspicuous area to ensure that it will bond to the material. Kitchen cabinets are painted or stained and clear coated in a vast array of colors. The one window wall you see on the right since i will be having 42 cabinets so there isn't much wall to paint. Paint that has a higher sheen contains more enamel, making it harder, easier to clean, and more resistant to scratching, scuffing, and staining. Prep is key to any paint project, including kitchen cabinets, and i always recommend start...
Dapatkan link
Facebook
X
Pinterest
Email
Aplikasi Lainnya
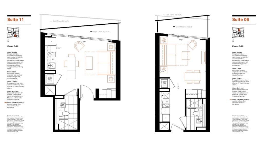
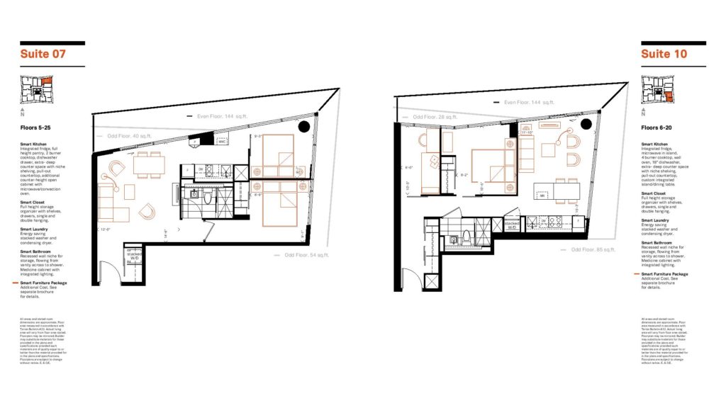
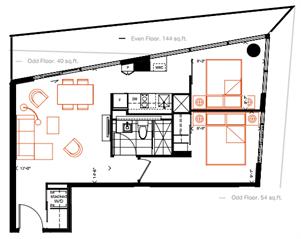
Smart House Floor Plans / Smart House Condos Floor Plans Prices Availability Talkcondo - Thousands of house plans and home floor plans from over 200 renowned residential architects and designers.
Dapatkan link
Facebook
X
Pinterest
Email
Aplikasi Lainnya
Smart House Floor Plans / Smart House Condos Floor Plans Prices Availability Talkcondo - Thousands of house plans and home floor plans from over 200 renowned residential architects and designers.. Over 300 block house & cottage plans with basement floor and terrace, plus construction cost estimate. Setting up a home map for irobot (for example to clean the house, from one room to another) thanks to the indoor mapping feature. Designed to maximize space, the smart house condos feature a stunning 196 residences designed to maximize space. They're also a valuable tool for real estate agents and leasing. Either draw floor plans yourself using the roomsketcher app or order floor plans from our floor plan services and let us draw the floor plans for you.
Find your perfect floor plan. Our plans home planning why adair resources contact company set build area my adair. Your floor plan will also reflect basic furniture layout and this can also be planned as per vastu if need be. Sdc house plans offers a variety of stock house plans sizes and styles ranging from coastal to tuscan and classic american. Within the cube house range of small house plans we offer weatherboard, profiled metal, plaster and cedar.
Smart House In Toronto On Prices Plans Availability from d2kcmk0r62r1qk.cloudfront.net Your floor plan will also reflect basic furniture layout and this can also be planned as per vastu if need be. Welcome back to architecture plans site, this time i show some galleries about stone house floor plans. Let's find your dream home today! Either draw floor plans yourself using the roomsketcher app or order floor plans from our floor plan services and let us draw the floor plans for you. You've landed on the right site! Small house floor plans are usually affordable to build and can have big curb appeal. House plans with terraces, decks, verandas, or porches for outside living. Want to build your own home?
Integrate floor plans to your home automation applications:
That's why we keep a full range of detailed custom home floor plans available for you to browse and get inspiration. Attractive and workable floor plans. See what it can give you before you decide. Designed to maximize space, the smart house condos feature a stunning 196 residences designed to maximize space. Small house floor plans are usually affordable to build and can have big curb appeal. Whether rooming solo or needing a place for the roomie crew, we've got you covered with quality living spaces in the. Our plans home planning why adair resources contact company set build area my adair. Our story building homes since 1969 smartology the art & science of smart living quality builds built your custom home starts here. Pick your floorplan by square feet: Sdc house plans offers a variety of stock house plans sizes and styles ranging from coastal to tuscan and classic american. Homeplans.com is the best place to find the perfect floor plan for you and your family. All house plans can be constructed using energy efficient techniques such as extra insulation and, where appropriate, solar panels. You've landed on the right site!
Below are 25 best pictures collection of floor plan for houses photo in high resolution. Want to build your own home? With over 35 years of experience in the industry, we've sold thousands of home plans to proud customers in all 50 states and across canada. We re just here to make your new home happen with expertise super smart processes juicy cost efficiencies. Discover the floor plan for hgtv smart home 2019.
Smarthouse Condo And Loft Canada from condoandloft.ca Your floor plan will also reflect basic furniture layout and this can also be planned as per vastu if need be. .inventory of house blueprints includes simple house plans, luxury home plans, duplex floor plans, garage plans, garages with apartment plans, and inside a modern craftsman house plan you'll usually discover an open floor plan, exposed rafters, a large stone fireplace, and a variety of smart. With over 35 years of experience in the industry, we've sold thousands of home plans to proud customers in all 50 states and across canada. Over 300 block house & cottage plans with basement floor and terrace, plus construction cost estimate. Let's find your dream home today! Browse small ranch, 2 bedroom, open concept, basement, garage & more designs! Below are 25 best pictures collection of floor plan for houses photo in high resolution. Is it important to employ a 3d house plan in your project?
We re just here to make your new home happen with expertise super smart processes juicy cost efficiencies.
Some times ago, we have collected galleries to find brilliant ideas, we found these are very interesting galleries. Whether rooming solo or needing a place for the roomie crew, we've got you covered with quality living spaces in the. Click here for information about plan modifications. House plans envisioned by designers and architects — chosen by you. May you like floor plan for houses. Smart 3 bed single level floor plan. See what it can give you before you decide. Small home plans maximize the limited amount of square footage they have to provide the necessities you need in a home. .inventory of house blueprints includes simple house plans, luxury home plans, duplex floor plans, garage plans, garages with apartment plans, and inside a modern craftsman house plan you'll usually discover an open floor plan, exposed rafters, a large stone fireplace, and a variety of smart. Many of the homes in this collection feature smaller square footage and simple footprints, the better to save materials and energy for heating and cooling. Small house floor plans are usually affordable to build and can have big curb appeal. We have some best of imageries to imagine you, look at the photo, the above mentioned are beautiful images. Your floor plan will also reflect basic furniture layout and this can also be planned as per vastu if need be.
Builder may substitute materials for those provided in the plans and. We have some best of imageries to imagine you, look at the photo, the above mentioned are beautiful images. Some times ago, we have collected galleries to find brilliant ideas, we found these are very interesting galleries. They're also a valuable tool for real estate agents and leasing. Click the image for larger image size and more details.
Smart House Home Leader Realty Inc from www.homeleaderrealty.com Our texas house floor plans show exact layouts. Small house floor plans are usually affordable to build and can have big curb appeal. All house plans can be constructed using energy efficient techniques such as extra insulation and, where appropriate, solar panels. Designed to maximize space, the smart house condos feature a stunning 196 residences designed to maximize space. Edgehomes has 30+ unique floor plans to personalize, so your new home in utah will truly be yours. Sdc house plans offers a variety of stock house plans sizes and styles ranging from coastal to tuscan and classic american. .inventory of house blueprints includes simple house plans, luxury home plans, duplex floor plans, garage plans, garages with apartment plans, and inside a modern craftsman house plan you'll usually discover an open floor plan, exposed rafters, a large stone fireplace, and a variety of smart. We have some best of imageries to imagine you, look at the photo, the above mentioned are beautiful images.
Small house plans, smart, cute, and cheap to build and maintain.
The floor plan may depict an entire building, one floor of a building, or a single room. Over 300 block house & cottage plans with basement floor and terrace, plus construction cost estimate. 2021's best small house floor plans & house plans. Click here for information about plan modifications. Floorplanner is the easiest way to create floor plans. 0 sold out floor plans. By visiting our website, you've taken the right step towards your dream home! Edgehomes has 30+ unique floor plans to personalize, so your new home in utah will truly be yours. Small house floor plans are usually affordable to build and can have big curb appeal. It may also include measurements, furniture, appliances, or floor plans are useful to help design furniture layout, wiring systems, and much more. Our small house floor plans focus more on style & function than size. Each house plan drawing has the dimensions of the foundation, floor plans, and general information. Sdc house plans offers a variety of stock house plans sizes and styles ranging from coastal to tuscan and classic american.
Bathroom Shower Ideas Tile / These 20 Tile Shower Ideas Will Have You Planning Your Bathroom Redo : However, it also works as one of the important elements that are affecting your bathroom appearance. . Shower tile ideas and design. With over 99 bathroom ideas, no matter what size we've included plenty of bath, shower and tap decor for different master ensuites, kids bathrooms design and style. If you're unsure about shower tile ideas that mix and match materials, you can still add subtle visual contrast by choosing a different size of tile inside the shower. Bathroom tile bathrooms how to materials and supplies tile showers. For example, choose larger squares of porcelain tiles with a bold graphic such as a freeform flower design. Later modern modular bathroom design ideas 2020, small bathroom floor tiles, modern bathroom wall tile design ideas. There are many bathroom shower ideas to explore. Make sure that you have good planning for your tile bathroom sho...
Pavilion Floor Plan Architecture / Barcelona Pavilion Floor Plan Residential Area Design Plan Schematic Elevation Png Pngwing - The german pavilion was an exposition showcasing examples of architecture from around the world. . Look at these pavillion style homes. Barcelona pavilion floor plan dimensions. Home / works by famous architects floor plans / barcelona pavilion autocad plan barcelona pavilion autocad plan architect: Ludwig mies van der rohe architecture building design architecture portfolio modern floor plans house floor plans farnsworth house plan schroder house pavillion glass pavilion. Wirra willa pavilion / matthew woodward architecture. As in all the designs of van eyck, who advocates a 'humane architecture,' circles and curves play an essential role. Floor plan of the taj mahal, showing eight chambers surrounding a central chamber. On four floors, can be understood as low, wide, connected, and flexible. This site is a place for me to experime...
How To Make House Plan As Per Vastu : 200 Types Of House Plans As Per Vastu Shastra Ebook By As Sethu Pathi 9780463562895 Rakuten Kobo United States : West facing house vastu:plans with pooja room, main door placement. . Here you may to know how to construct house as per vastu. So that you get the benefits of the principles of vaastu shastra. This is the reason we are soaring high and the list of clients increasing rapidly. Hello friends, in this video w'll learn how to read vastu chart for making house plan, also learn how to understand and learn vastu house plan. Vastu purusha sits in a plot area with face down toward. The plan is for a big joint family of almost 15 people staying together in harmony. Some vastu guidelines for buying property according to vastu shastra that can help you prosperity important consideration for buying a property as per vastu. If this direction is not according to vastu, it can bring many problems to the inmates of the structure. W...
Komentar
Posting Komentar